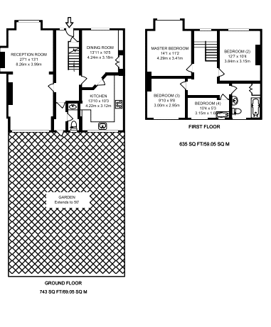
A four bedroom double fronted end of terrace house set within a peaceful cul de sac in the heart of Hampstead Garden Suburb. The property is in need of complete refurbishment and offers the potential for someone to extend and create a stunning family home, (subject to the necessary consents). Set over two floors, the property currently comprises four bedrooms, two reception rooms, bathroom kitchen and garden. Further benefits include off street parking for two cars, substantial loft space and communal gardens.

YOUR AGENT

Jonathan Arron
Director

YOUR AGENT

Jake Lloyd-Lewis
Sales Consultant

YOUR AGENT

Stephen Mcnicholas MNAEA
Sales Consultant

Looking to sell your home?

Let one of our experts appraise your property

Value My Home
Top