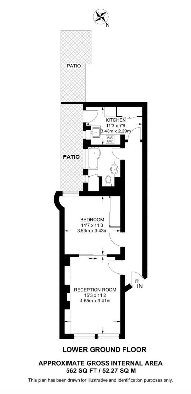
Stunning recently refurbished, newly decorated one double bedroom apartment, (Approx. 562 Sq Ft, 52.2 Sq M), set on the lower ground floor of this period building located in the heart of Marylebone This contemporary apartment comprises bright reception room with wooden floors, sash windows with security locks, wooden blinds, double bedroom with built in storage, contemporary bathroom suite and newly fitted kitchen leading to a private rear patio with table and chairs. Further benefits of this apartment include full furnishing comprising of king size bed, leather sofa, washing machine, kitchen amenities including micro combi oven, dishwasher, toaster, kettle and crockery, heated underfloor heating to both the kitchen and bathroom. Hanson Street is surrounded by an array of local amenities, while the comprehensive shops and restaurants of Mayfair and Soho are also close by. Transport links include Goodge Street Underground Station (Northern line) and a number of regular bus services. Council Tax, (Band E, Westminster) Deposit- 5 weeks rent

YOUR AGENT

Joel Woudstra MARLA
Lettings Manager

Looking to sell your home?

Let one of our experts appraise your property

Value My Home
Top