2 bedroom Flat to rent in Clarendon Court, 33 Maida Vale, London, Maida Vale, W9
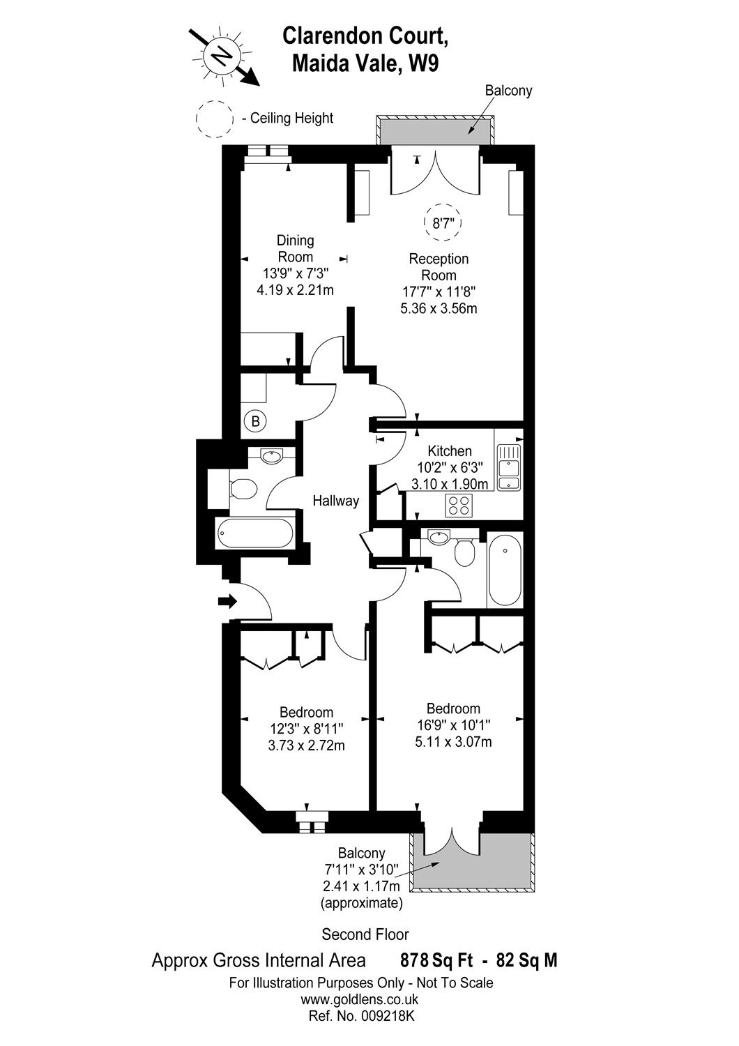
Sole Agent: A stunning two bedroom, two bathroom apartment of approximately 878 sq ft/ 82 sq m, located on the second floor of a desirable modern portered block in Maida Vale. The apartment benefits from two double bedrooms, one with en- suite, a larger than average reception room with a South West facing balcony off the reception room with far reaching views, a separate dining room, a separate fully fitted kitchen and a family bathroom. Further benefits include, wood floors, 24 hour porterage, a lift and is ideally located in a central position, close to the shops and cafés of Clifton Road in Little Venice, the Everyman Cinema and both Maida Vale and Warwick Avenue underground stations (Bakerloo Line), as well as numerous frequent bus routes. A secure underground parking space is available by separate negotiation. Council Tax- (Band G, Westminster City) Deposit- 5 weeks rent
 
                              
                              
                              
                              
                              
                              
                              
                              
                              
                              
                              
                              
                              
                              
                              
                 
                                     
                                     
             
            