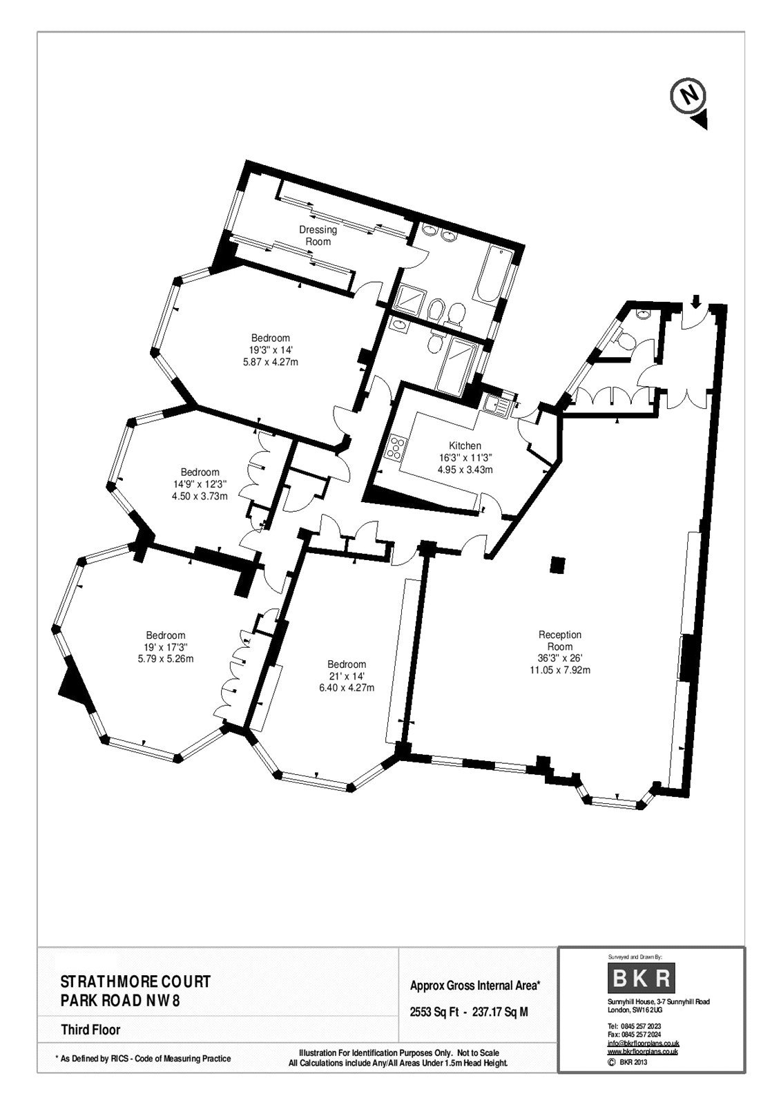
Recently refurbished four double bedroom, three bathroom, third floor apartment of approximately 2553 sq ft / 237.17 sq m, located within a prestigious mansion block in St John’s Wood. The apartment comprises a master bedroom with en suite and dressing area, three further double bedrooms with two en suite bathrooms and a large sized double reception room. The property further benefits from porterage service a lift and has views overlooking Regents Park. Strathmore Court is within a short walk to Regents Park and St John’s Wood High Street and Underground station (Jubliee Line). Council Tax (Band H, Westminster City) Deposit- 6 weeks rent

YOUR AGENT

Joel Woudstra MARLA
Lettings Manager

Looking to sell your home?

Let one of our experts appraise your property

Value My Home
Top