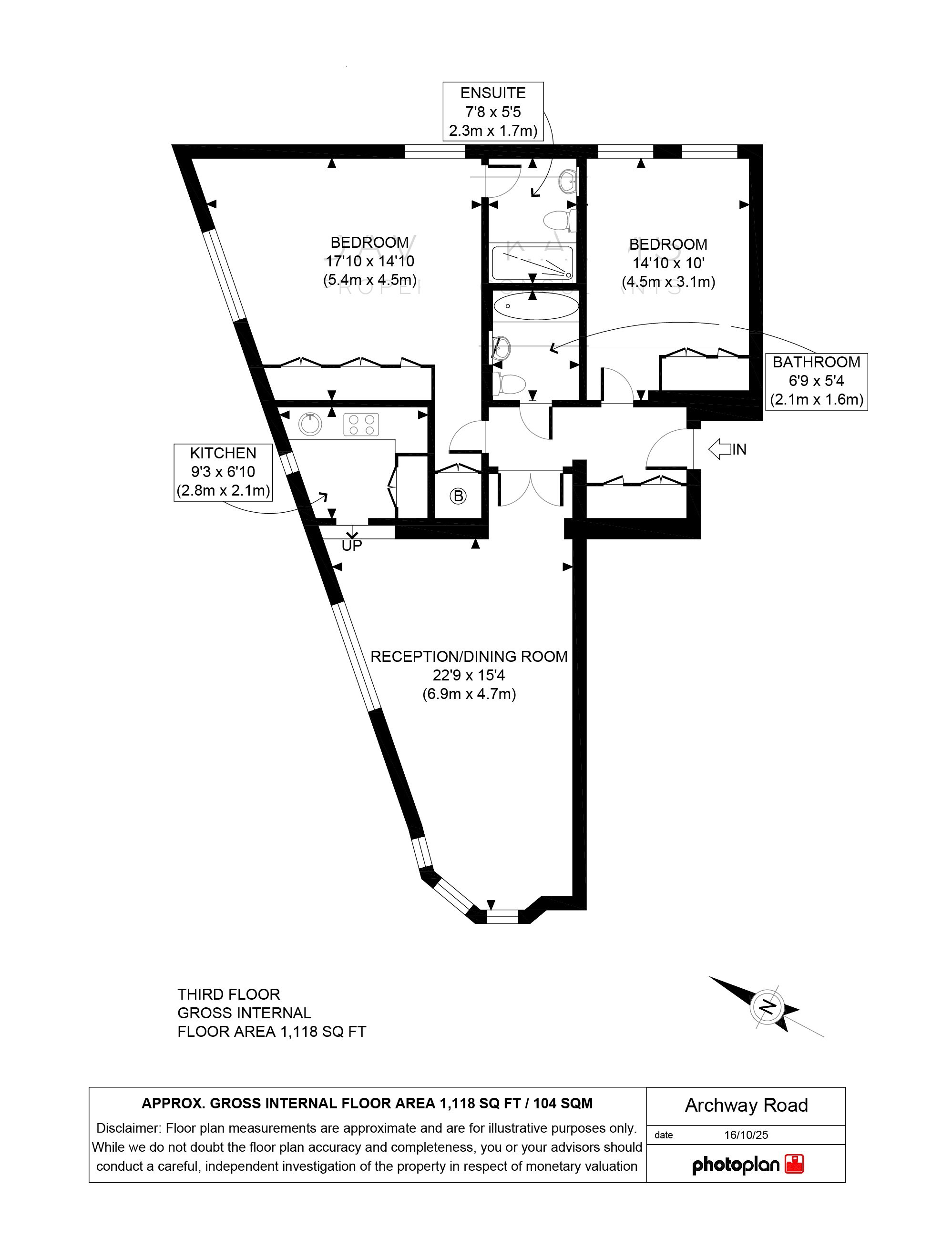
A delightful and unique 2 bedroom apartment set within this attractive, landmark building positioned in this highly sought after location. This third floor apartment measures in the region of 1,118 Sq Ft (104 SQ M) and offers well planned and spacious accommodation. As you enter the apartment you are greeted with a welcoming entrance hallway with built in cloaks cupboards, this leads through to a bright 23' reception room with a semi-circular bay window. In turn the reception room leads into a well-appointed kitchen. Furthermore, the 18' dual aspect, principal bedroom suite provides for built in wardrobes and a modern and contemporary en-suite shower room, whilst the second double bedroom has built in wardrobes and use of a lovely, tiled family bathroom. Additional benefits include underfloor heating, wide plank, strip wood flooring and wonderful views of the London Skyline. The building is conveniently placed for the transport links offered by Highgate Station which is approximately 0.3 miles away. Highgate High Street is approximately 0.5 miles away with its wonderful array of shops, restaurants and vibrant cafes. The wide green open spaces of Waterlow Park are also within walking distance. Service Charge: £3,000pa Ground Rent: £500pa Lease remaining: 141 years Council Tax: E

YOUR AGENT

Jonathan Arron
Director

YOUR AGENT

Jake Lloyd-Lewis
Sales Consultant

YOUR AGENT

Stephen Mcnicholas MNAEA
Sales Consultant

Looking to sell your home?

Let one of our experts appraise your property

Value My Home
Top