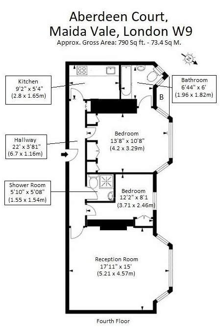
A well presented, bright and spacious two bedroom, two bathroom, apartment set on the 4th Floor of this attractive and sought-after red brick purpose built portered block located in the heart of Little Venice. The apartment has been recently decorated throughout and measures approximately 790 Sq ft (73.4 Sq M.). The accommodation comprises an entrance hallway, generous 18’ reception room with a bay widow, fitted kitchen, a master bedroom with an en-suite bathroom and a second bedroom with use of a separate shower room. The property further benefits from high ceilings and a large bay windows that flood the rooms with light. In addition, the block offers use of a brand new passenger lift and a resident porter. Aberdeen Court is located moments from the Regents Canal and transport is provided by numerous local busses, together with the underground station of Warwick Avenue. (0.3 miles away) Clifton Road offers local eateries, supermarkets and shopping facilities all within walking distance. Service Charge-£1719.00 per quarter Reserve fund- £963.40 per quater Ground Rent £20 per quarter Lease Length- 85 years remaining EPC Rating- D Council Tax- Band F- Westminster City Council

YOUR AGENT

Jonathan Arron
Director

YOUR AGENT

Jake Lloyd-Lewis
Sales Consultant

YOUR AGENT

Stephen Mcnicholas MNAEA
Sales Consultant

Looking to sell your home?

Let one of our experts appraise your property

Value My Home
Top