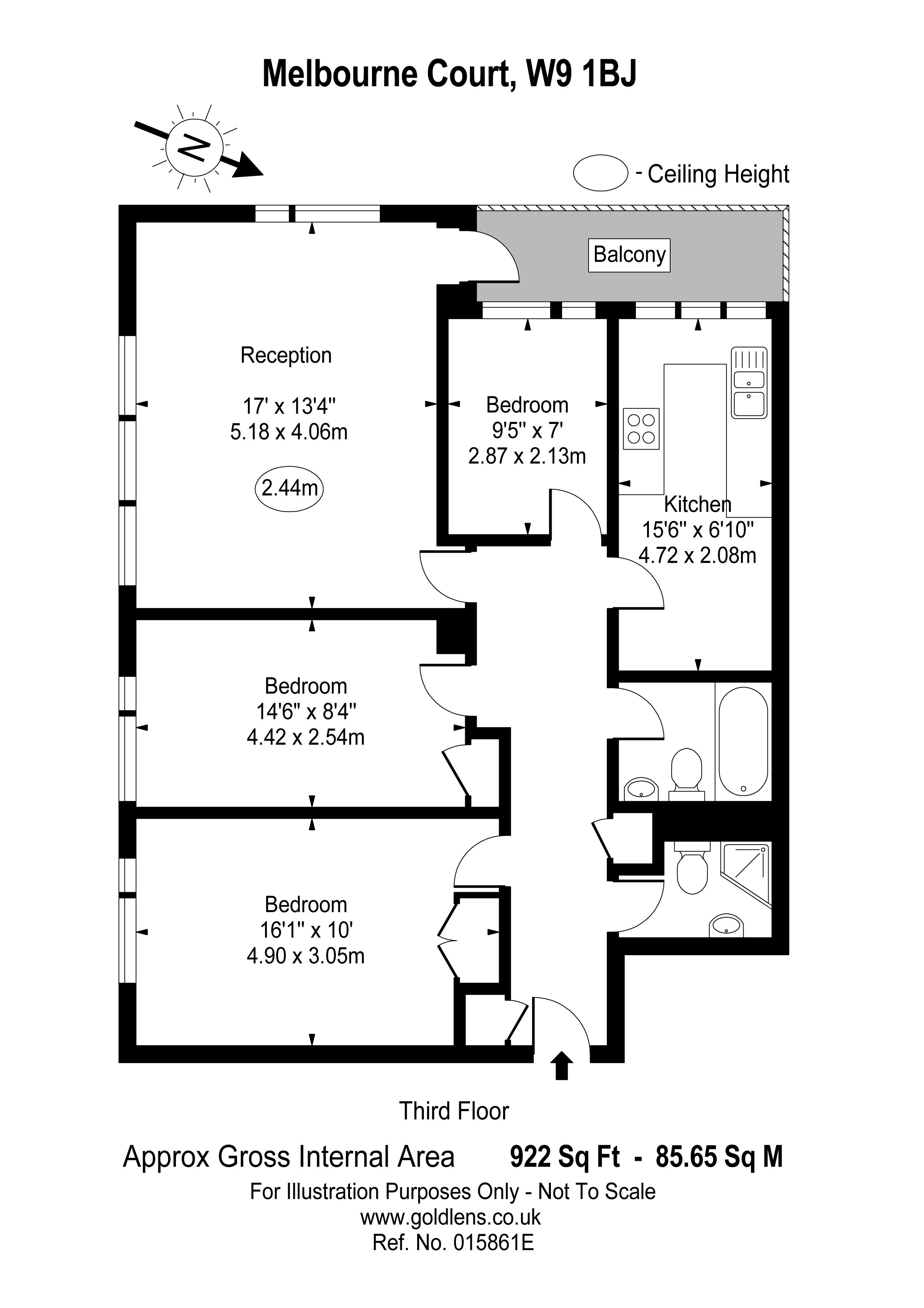
A very bright and spacious third floor 3 bedroom flat of 922 sq ft/ 85 sq m, set in this very popular purpose built block in Little Venice. The apartment benefits from a 17ft reception room, a separate kitchen, two bathrooms, a private West facing balcony, passenger lift and a porter. The apartment would also be ideal as a rental investment. The flat is ideally located in the heart of Little Venice, close to the Regents Canal and the amenities of Clifton Road and Warwick Avenue Underground Station (Bakerloo Line).

YOUR AGENT

Jonathan Arron
Director

YOUR AGENT

Jake Lloyd-Lewis
Sales Consultant

YOUR AGENT

Stephen Mcnicholas MNAEA
Sales Consultant

Looking to sell your home?

Let one of our experts appraise your property

Value My Home
Top