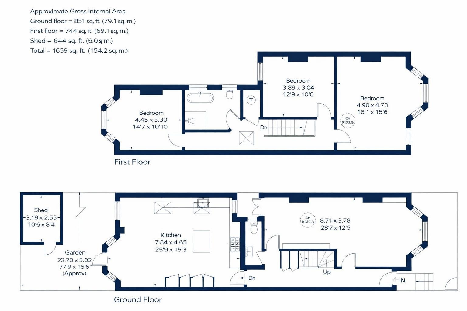
Situated on one of Willesden’s most attractive and sought-after residential streets, this beautifully presented Edwardian family home combines elegant period architecture with thoughtfully designed contemporary living. Kings Road is widely regarded as a quiet, tree-lined street known for its handsome period houses, generous gardens and strong community feel, offering a rare sense of tranquillity while remaining exceptionally well connected to Central London. Extending to approximately 1,595 sq ft, the property has been carefully refurbished to create a home that balances character and modern design. Many original features have been retained, including ornate cornicing, ceiling roses, fireplaces and traditional tiled flooring, all complemented by high-quality modern finishes throughout. The ground floor provides an impressive through reception room, creating a generous and flexible living and entertaining space filled with natural light. To the rear of the house, an architect-designed side return extension forms a striking open-plan kitchen and dining room, finished with exposed brickwork, underfloor heating, bespoke cabinetry and integrated appliances. Large glazed doors open directly onto the garden, creating a seamless connection between indoor and outdoor living. Upstairs, the first floor offers three well-proportioned bedrooms alongside a beautifully appointed family bathroom featuring a freestanding bath and a separate utility/laundry space, providing both practicality and convenience for everyday family life. The landscaped east-facing garden has been designed to be enjoyed throughout the year, offering defined seating and entertaining areas surrounded by mature planting. At the rear of the garden sits a powered outbuilding, ideal for use as a studio, workspace, gym or additional storage. There is also precedent on the street for loft extensions, presenting further potential to increase the accommodation subject to the usual planning consents.

YOUR AGENT

Jonathan Arron
Director

YOUR AGENT

Jake Lloyd-Lewis
Sales Consultant

YOUR AGENT

Stephen Mcnicholas MNAEA
Sales Consultant

Looking to sell your home?

Let one of our experts appraise your property

Value My Home
Top