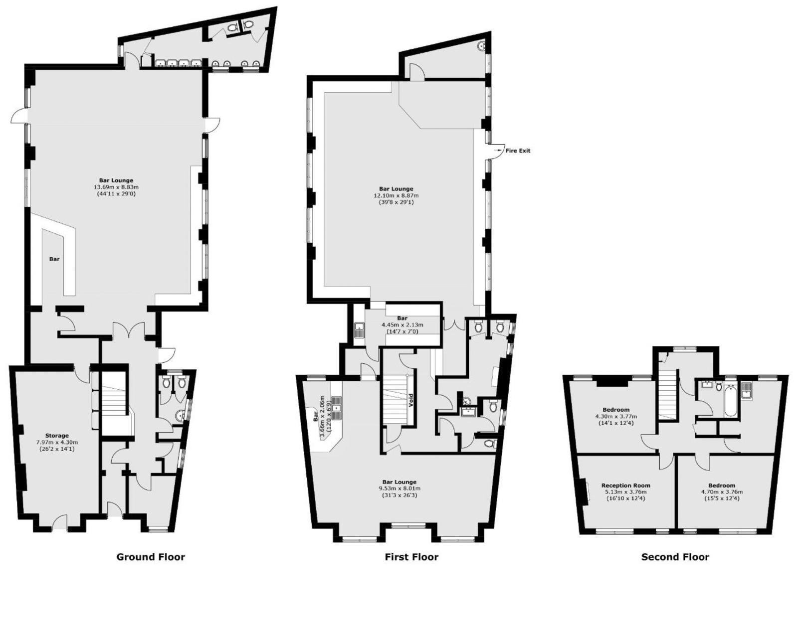
Opportunity to acquire a substantial former club premises extending to approximately 5,825 sq ft (541 sq m) in NW2, offered with vacant possession. The property comprises a former Legionnaires club arranged over ground and ancillary areas, providing a large open hall space, bar areas, storage rooms and associated facilities. The building benefits from generous internal volume and a flexible layout, making it suitable for a range of alternative uses. Key Highlights: • Freehold interest • 5,825 sq ft gross internal area • Vacant possession • Prominent NW2 location • Scope for asset management and redevelopment • Guide Price: £1,100,000 Development Potential The property offers clear conversion and redevelopment potential, subject to the usual planning consents. Given the scale and configuration, the building may lend itself to: • Residential conversion (STPP) • Community / educational use • Place of worship (STPP) • Medical or clinic use (STPP) • Reconfiguration into multiple units (STPP) Purchasers should make their own enquiries with the local planning authority. Location Situated in NW2, the property benefits from good transport links and access to local amenities. The area comprises a mix of residential and commercial occupiers, supporting long-term redevelopment prospects.

YOUR AGENT

Jonathan Arron
Director

YOUR AGENT

Jake Lloyd-Lewis
Sales Consultant

YOUR AGENT

Stephen Mcnicholas MNAEA
Sales Consultant

Looking to sell your home?

Let one of our experts appraise your property

Value My Home
Top